Vivim en espais que han estat construïts en diferents moments històrics. Sense anar més lluny, en els últims 120 anys s’han introduït tot un seguit de nous materials i sistemes constructius que no acostumen a tenir la salut de l’usuari final dins de les seves raons de ser. Augmentar la productivitat industrial o la de l’aplicador, i augmentar marges econòmics acostumen a ser-ne els motors. El resultat han estat una profusió enorme d’edificis poc saludables quan no son malaltissos (síndrome de l’edifici malalt). És per això que té tot el sentit apostar per millorar aquest aspecte dels espais que habitem vivint-hi, treballant-hi, etc…
Des d’Oken, ens hem format per donar resposta a aquest repte i hem estructurat un servei que ha esdevingut molt eficaç i que us detallem a continuació:
El cas d’una petita masia
1) En primer lloc cal aixecar un bon estat actual:

2) A continuació es fa una enquesta escrita per a que l’usuari pugui respondre amb calma i després es comenta abastament:

3) Es fa un estudi geobiològic per veure els bons llocs de la llar:

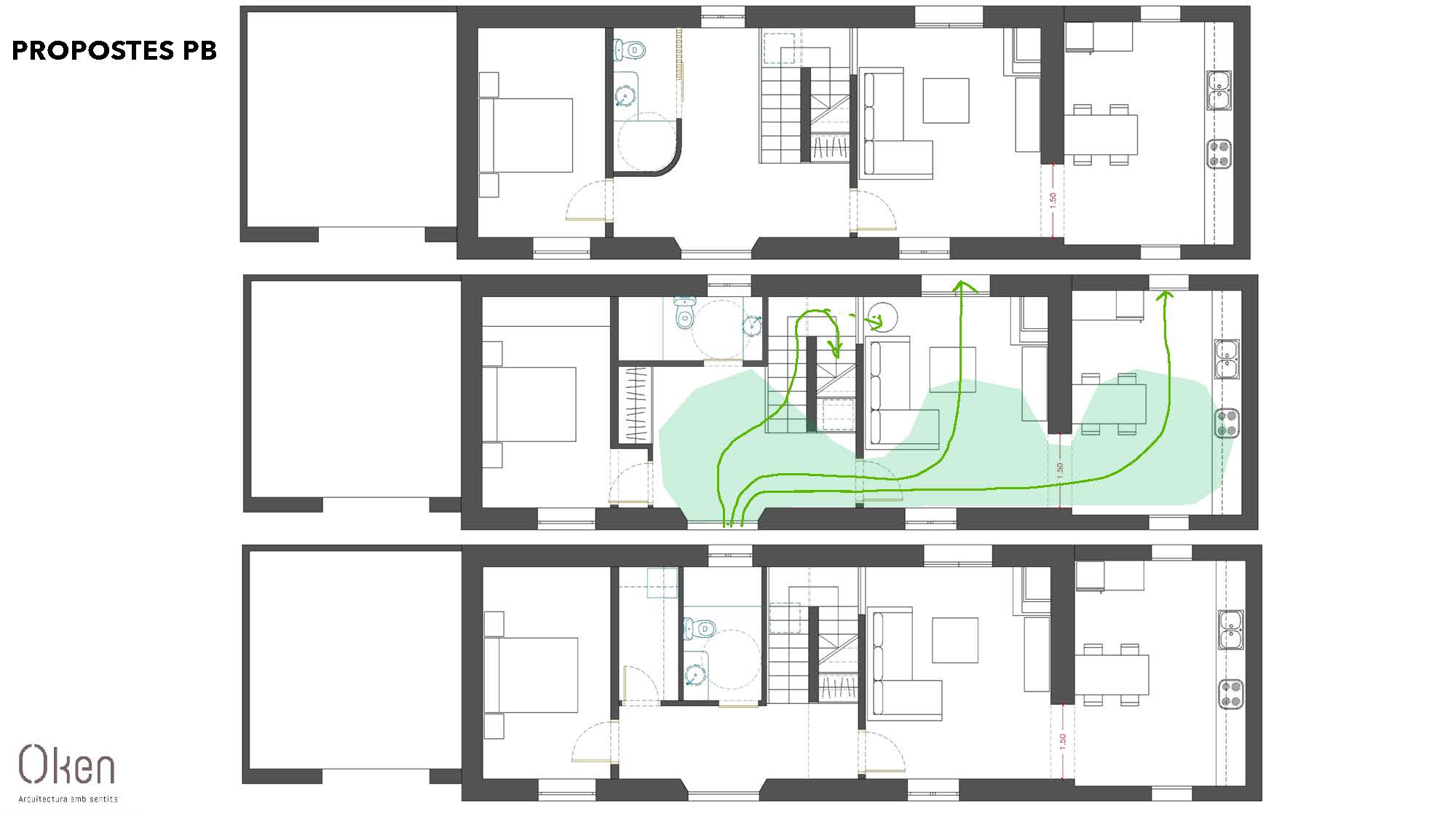
4) Es fan diverses propostes analitzant pros i contres mentre es debaten amb el client:




5) Es visualitzen aquests espais per ajudar-ne a la comprensió ja sigui amb moodboards, croquis manual o 3d digital segons complexitat:

6) Posteriorment es calcula la geometria del lloc i s’encaixen les estances en geometries que potencien la vitalitat de la nostra llar:


7) Finalment es faria un estudi per la millora de l’eficiència energètica per augmentar el confort i reduir la despesa econòmica a llarg plaç.

A partir d’aquí s’avalua si el resultat al que s’ha arribat necessita d’uns tràmits administratius o altres per definir quina documentació s’hauria de desenvolupar.
El pressupost disponible i establir unes bones prioritats ens acabaran de definir si actuem per fases o tot d’una. En qualsevol cas nosaltres sempre us hi acompanyarem per a que tingueu la millor experiència possible.
Cal recordar que segons l’estudi NHAPS de l’Agència de Protecció Ambiental (EPA), passem prop del 90% del nostre temps en espais interiors. Per això, no només reformem edificis, sinó que creem espais que propicien la salut de les persones que els habiten.
La teva llar és l’espai on transcorre gran part de la teva vida (recorda les hores que dorms…). Per això, en una reforma saludable, el nostre compromís va més enllà de l’estètica: apliquem la geobiologia, la geometria natural i l’eficiència energètica per transformar espais que no vetllen per la teva salut o que directament l’empitjoren, en un ecosistema que cuida activament de tu i dels teus. No es tracta només de rehabilitar un edifici, sinó de dissenyar l’escenari on el teu benestar és el protagonista.
Posa’t en contacte amb nosaltres, estarem encantats d’ajudar-te!
